We are good at providing Automation or Turnkey Automation services in the most reliable and effective manner. Our services in this area are known for its superior quality that comes along with following the international norms and regulations. Our customized solutions promise one hundred percent satisfaction to our client's requirements.
+97155 949 7069
packaging machinery manufacturer in uae WAYLOG
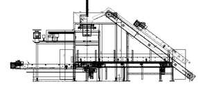
Waylog is a leading Industrial Automation Company in Dubai, UAE. Waylog weighing automation solutions work for various process industries like cement, mining, food, sugar, construction and material handling etc. We are focused on our customers’ needs and objectives so that we can optimize their processes and make them more efficient and profitable. Waylog product range PLC Based automation, Scada integration, Electrical panel construction, robotic system, coding, marking and labeling, turnkey packaging solution, Automatic Food Packaging machines, form filling machines, Multi-head, Auger filling machine, Liquid filling machine, capping machine. labeling machine, flow wrapping machine, Semi automatic bagging machine, Jumbo bagging machine, Spout bagging machine, Drum filling machine, Pallet shrink wrapping machine, metal detector, belt scale, weighing scale, pallet scale, weigh feeder, batching system, Etc.

WAYLOG AUTOMATION

WAYLOG AUTOMATION
Welcome
Welcome to Waylog Automation Solutions, a Dubai-based firm specialized in industrial automation and packaging solutions, offers a comprehensive solution for process industries. We design, manufacture, and supply industrial weighing equipment, packaging machinery, and metal detection systems, ensuring efficient and optimized operations for clients in sectors like cement, food, and other industries.
Waylog is gulf leading packaging machinery manufacturer and supplier in uae dubai, Serving saudi arabia, oman, middle east and africa. Industrial automation company in dubai | leading industrial automation company in uae | Automation company in sharjah | leading industrial automation company in fujairah
Plc based automation company in dubai | Plc based automation company in uae | Scada system company in dubai | Automation solution company in dubai | Packaging machines manufacture in uae |
Automatic packaging machines supplier in dubai | packaging machine manufacture in uae | packing machine supplier in uae | liquid filling machine supplier in uae | liquid filling machine manufacture in uae |
liquid filling machine supplier in dubai | filling machine supplier in dubai | weighing machine supplier in dubai | weighing machine supplier in uae | multihead supplier in uae | form filling machine manufacture in dubai |
vertical form filling machine manufacture in uae | auger filling machine supplier in uae | auger filling machine manufacture in dubai | powder packaging machine supplier in uae | rice packaging machine supplier in dubai |
semi automatic bagging machine supplier in aue | semi automatic bagging machine company in uae | jumbo bagging machine manufacture in dubai | jumbo bagging machine supplier in uae | jumbo bagging machine company in uae | packaging machinery manufacturer in uae | packaging machine supplier in uae | packing machine supplier in dubai | food packaging machines supplier in uae | best quality filling machine supplier in uae| weigh feeder supplier in uae | weigh feeder manufacture in uae | weigh feeder company in uae | belt scale supplier in uae | belt scale manufacture in uae | belt scale system company in uae | belt scale calibration service in uae | belt scale calibration company in uae | optical belt scale company in uae | optical belt scale supplier in uae | optical belt scale manufacture in uae | labeling machine supplier in uae | labeling machine supplier in dubai | serving in ras al khaimah sharjah um al quwain middle east Africa and all over world | food processing | process automation | labeling machine service company in dubai | tray sealer company in dubai | tray sealer supplier in uae | tray sealing machine company in dubai | metal detector supplier in uae | metal detecting equipment supplier in uae | metal detector manufacture in uae | magnet supplier in uae | permanent magnet supplier in uae | electro magnet supplier in uae | magnetic separator supplier in uae | conveyor magnet manufacture in uae | ultrasonic level sensor supplier in uae | ultrasonic level sensor dealer in uae | advance industrial | bahrain | saudi arabia | qatar | kuwait | oman | iraq
Your Trusted Source for Quality Products and Services
We are committed to providing high-quality products and exceptional service to meet the unique needs of our clients. Our extensive experience and expertise in the industry allow us to deliver reliable solutions that drive efficiency and innovation.
Expert Consultations
Our team provides expert consultations at your location to understand your requirements and recommend the best-suited products
Unparalleled Customer Service
Experience customer service as we prioritize your satisfaction and strive to deliver unmatched support at every step.
Flexible Payment Options
We offer flexible financing options to make your product procurement process hassle-free and cost-effective.
Trusted and Certified
Rest assured with our products as we are a licensed and insured supplier, ensuring the highest standards of reliability and quality.
Why Choose Waylog Automation
CONTACT US
Waylog Automation Solutions FZE
Sales Office: Business center, SPCFZ, Al zahia,
Sharjah, U.A.E.
M: +971559497069
Waylog Machineries and Equipments Trd.
Sales Office: Floor - M 116, Al Hilal bank building,
Al Qusais 2, Al Qusais, Dubai - U.A.E.
Email: sales@waylogautomation.com
web: www.waylogautomation.com
Sales inquiries: sales@waylogautomation.com
Get a quote































